Eladó
Kiadó
Hitel
Szolgáltatás
Kapcsolat
 
Csabai Ingatlanpiac
Telefon: 20/213-5512   
Békéscsaba, Gyóni Géza utca 6.
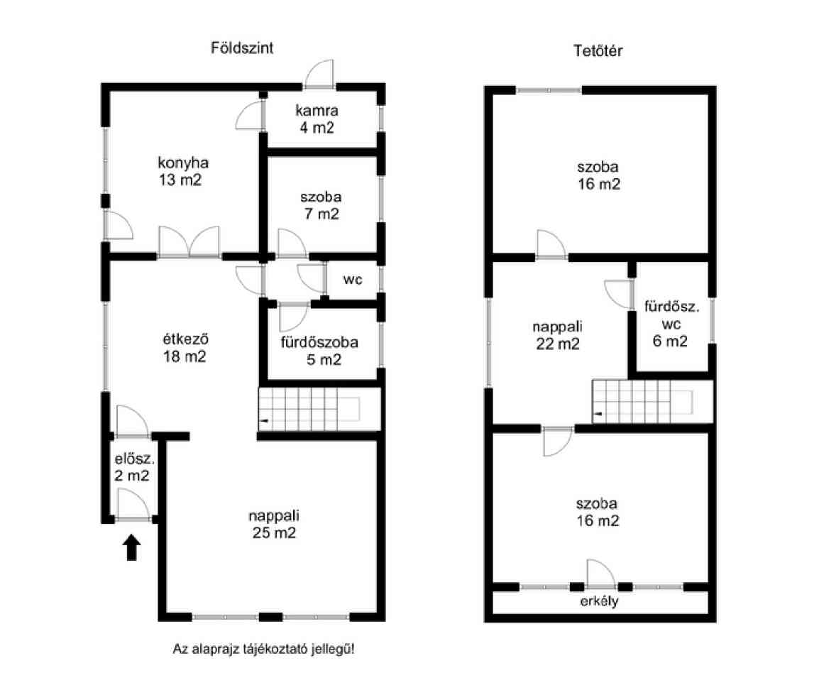
Eladó jó állapotú 3 szobás, étkezős, 2 nappalis családi ház  59.900.000 Ft

Békéscsaba kedvelt, családbarát, csendes városrészében, Fényesen kínálunk eladásra egy jó beosztású, három szobás, két nappalis, szerkezetileg kifogástalan állapotú 160 m2-es családi házat. Az ingatlan D-K-i tájolásának köszönhetően a szobák hangulatát a napfény és világosság jellemzi.

A 100 m2-es földszinti rész helyiségei: előszoba, tágas világos nappali, félszoba, étkező, konyha, kamra, kádas fürdőszoba, külön WC.

A 60 m2-es emeleti rész helyiségei: világos nappali, két szoba (az egyik erkélyes), tusolós fürdőszoba + WC.

Műszaki jellemzők: építés éve 1989, beton alap, beton lábazat, B30-as tégla falazat, perlites külső hőszigetelés, új műanyag nyílászárók, cirkófűtés (gázkazán + vegyes tüzelésű kazán) lapradiátoros hőleadók, 3 fázis, éjszakai áram.

Az 1121 m2-es telken található a főépülethez szorosan kapcsolódó téglafalazatú, 50 m2-es melléképület, amelyben a kazánház, tároló és kettő külön bejáratú garázs kapott helyet.

Ez a tágas, világos családi ház ideális otthona lehet azoknak, akik teret, nyugalmat és biztonságot keresnek.

A családi ház földhivatali dokumentációja rendezett, államilag támogatott hitelezésre alkalmas.

Irányár: 59,9 MFt. T: 30-9679-813

Békéscsaba-Fényes
Levél küldése:
 



Megtekintett ingatlanok...
 
Békéscsaba 88.000.000
 
Újkígyós 44.000.000
 
Békéscsaba 9.900.000
 
Békéscsaba 9.000.000
 
Békéscsaba 35.000.000
 
Békéscsaba -59.900.000
 
Békéscsaba 135.000
 
Békéscsaba 12.900.000
 
Békéscsaba 48.000.000
 
Szeged 54.900.000
 
Kamut 28.000.000
 
0
 
Vésztő 25.000.000
 
Békéscsaba 24.500.000
 
Békéscsaba 135.000
 
Békéscsaba 119.900.000
 
Békés 3.500.000
 
Kondoros 25.000.000
 
Békéscsaba 61.000.000
 
0
 
0
 
Békés 5.000.000
 
Békéscsaba 69.900.000