Eladó
Kiadó
Hitel
Szolgáltatás
Kapcsolat
 
Csabai Ingatlanpiac
Telefon: 20/213-5512   
Békéscsaba, Gyóni Géza utca 6.
4 szobás, étkezős téglafalazatú családi ház Kondoroson  25.000.000 Ft

Kondoroson kínálunk eladásra egy tégla falazatú négy szobás, étkezős, két fürdőszobás, szerkezetileg jó állapotú, 150 m2-es családi házat. Az ingatlan egyedi igény szerinti műszaki és esztétikai felújítást igényel.

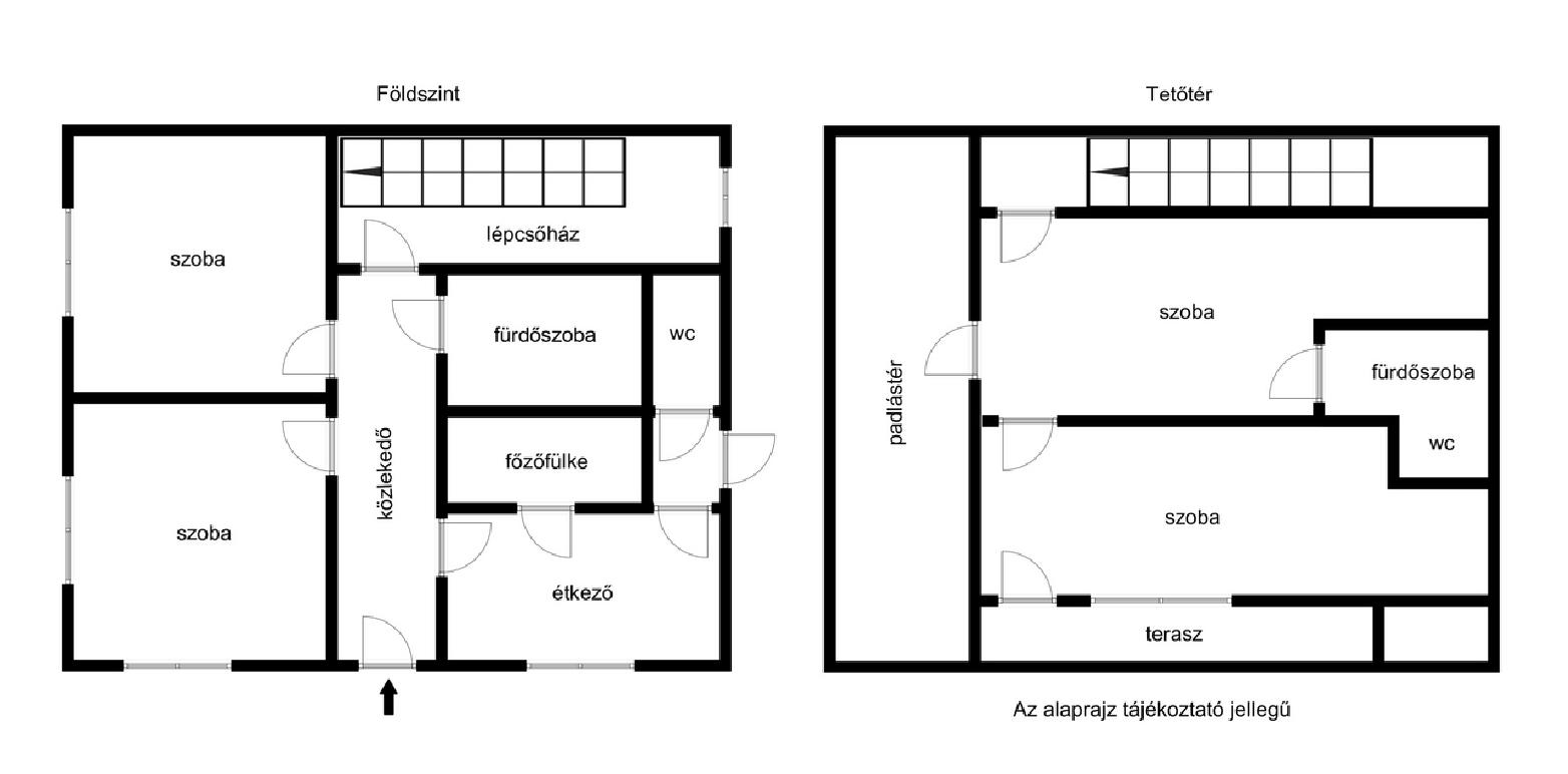
 110 m2-es földszinti rész helyiségei: két szoba, közlekedő, kádas fürdőszoba, étkező, főzőfülke, kamra, lépcsőház, külön helyiségben lévő WC, nyári konyha, kazánház.

A 40 m2-es tetőtéri rész helyiségei: két szoba (az egyik erkélyes), tusolós fürdőszoba + WC.

Műszaki jellemzők: építés éve 1989, beton alap, beton lábazat, tégla falazat, fa nyílászárók, cirkófűtés (gázkazán) lapradiátoros hőleadók, meleg víz ellátás villanybojlerrel biztosított.

A 887 m2-es telken található a főépülethez szorosan kapcsolódó tégla falazatú melléképületben tárolók, 25 m2-es garázs és egy 90 m2-es, műhelyként funkcionált helyiség kapott helyet.

A családi ház mérete alapján nagyobb család vagy két generáció részére is megfelelő lehet. Falusi CSOK igénybe vehető.

Irányár: 25 MFt. T: 30-9679-813

Kondoros
Levél küldése:
 



Megtekintett ingatlanok...
 
Békés 5.000.000
 
Vésztő 25.000.000
 
Békéscsaba -59.900.000
 
Újkígyós 44.000.000
 
Békéscsaba 9.900.000
 
Békéscsaba 35.000.000
 
Békéscsaba -49.900.000
 
Békéscsaba -14.000.000
 
Békéscsaba 28.900.000
 
Békéscsaba 12.900.000
 
Kondoros 25.000.000
 
Békés 3.500.000
 
Békéscsaba 24.500.000
 
Békéscsaba 69.900.000
 
0
 
0
 
Kamut 28.000.000
 
Békéscsaba 9.000.000
 
Békéscsaba 88.000.000